Multi Family and Multi Flooring House Structure Details dwg file
Description
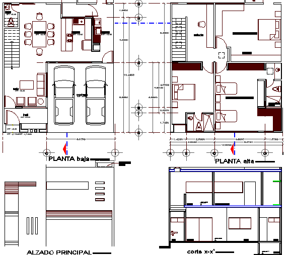
Multi-Family and Multi Flooring House Structure Details dwg file.
Multi-Family and Multi Flooring House Structure Details that includes detailed view of the main door, cuts, car parking area, main hall, with furniture, dinning area, balcony, kitchen, toilets and bathroom and much more house design.
Uploaded by:

