Submission Drawing DWG File for Nagar Nigam Building Approval Layout
Description
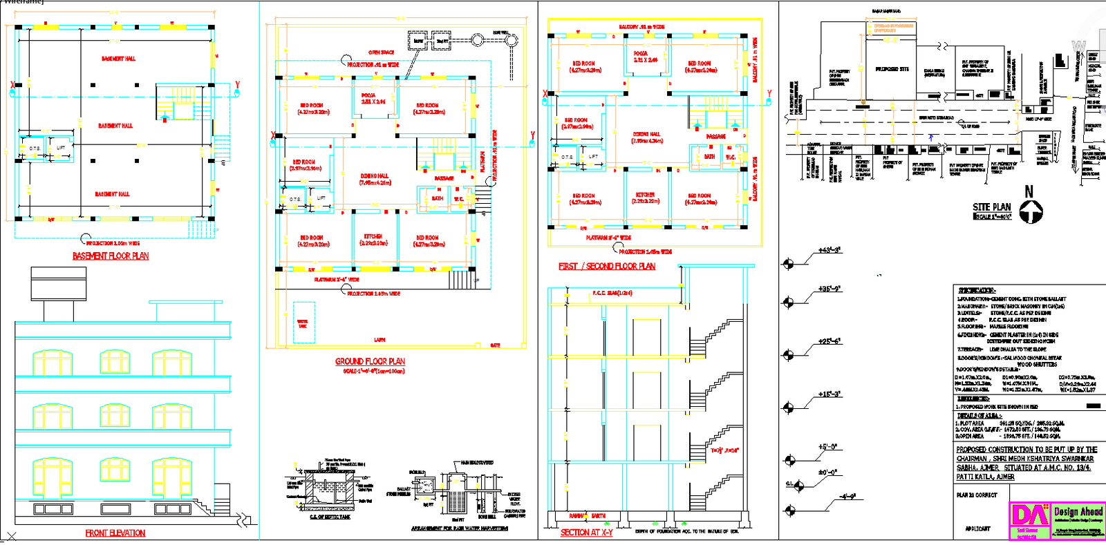
This Submission Drawing DWG file is prepared for Nagar Nigam approval, featuring detailed architectural plans, elevations, and sections. The layout includes a complete set of building drawings — basement, ground, and first-floor plans, site plan, front elevation, and structural details. It is drafted according to municipal guidelines, making it a valuable reference for architects and engineers preparing approval-ready plans.
The DWG drawing ensures accuracy in scale, dimensioning, and construction detailing, ideal for official submission and permit processes. It offers a clear visual representation for structural and architectural validation. This file serves as a professional template for designing residential or commercial buildings that meet Nagar Nigam standards, helping professionals streamline the approval and documentation process with precision and compliance.
Uploaded by:
Lion Sunil Sharma
Lion Sunil Sharma

