Multi-Flooring Bungalow Design and Elevation dwg file
Description
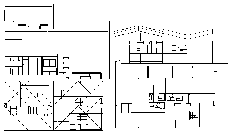
Multi-Flooring Bungalow Design and Elevation dwg file.
Multi-Flooring Bungalow Design and Elevation that includes front and back elevations with detailed view of wall construction, doors and windows, staircase view, column and beam, two entry doors, basement and much more of bungalow design.
Uploaded by:

