Row house plan 2D cad drawing is given in this cad file design
Description
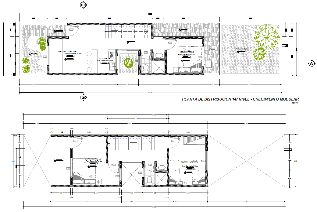
This row house plan 2D cad drawing provides a well-detailed residential layout that includes both the ground floor and first floor plans. The ground floor features a living room, kitchen, dining area, common toilet, and a bedroom, designed with a focus on efficient space management. The first floor includes a guest bedroom, a kids' bedroom, and an additional toilet, ensuring comfort and functionality for a small to medium-sized family. The DWG file represents clear line work, accurate measurements, and well-organized layout sections suitable for design and construction reference.
This 2D cad drawing is perfect for architects, civil engineers, and interior designers working on compact residential housing projects. It offers a modular floor arrangement ideal for row house development and modern housing designs. Each element in the plan ensures smooth circulation and optimal room distribution. This file is valuable for design visualization, presentation, and planning, providing a professional foundation for residential project execution.

Uploaded by:
Eiz
Luna

