Multi-Family Housing with Store Design and Structure Details dwg file
Description
Multi-Family Housing with Store Design and Structure Details dwg file.
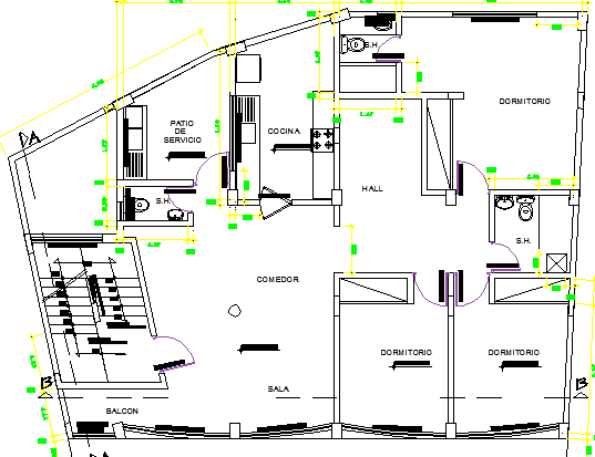
Multi-Family Housing with Store Design and Structure Details that includes detailed view of toilets and bathrooms, hall, living area, kitchen, family room, balcony, bedrooms, terrace, wash area and much more of house design.
Uploaded by:

