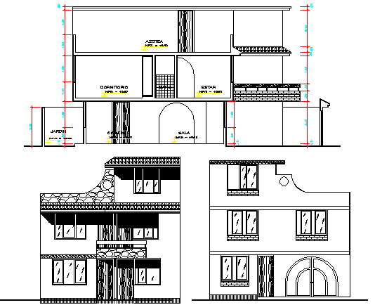
Single Family Two Flooring Bungalow Design and Elevation dwg file
Description
Single Family Two Flooring Bungalow Design and Elevation dwg file.
Single Family Two Flooring Bungalow Design and Elevation that includes front elevation, back elevation, side elevations, cuts, section details, doors and windows, staircase elevation, balcony, roof and terrace and much more of bungalow design.
Uploaded by:
