Single Family Bungalow Design and Structure Details dwg file
Description
Single Family Bungalow Design and Structure Details dwg file.
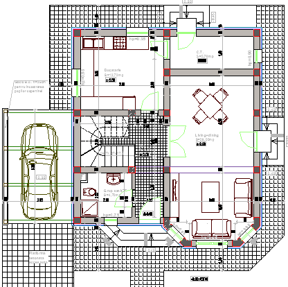
Single Family Bungalow Design and Structure Details that includes a detailed view of car parking area, garden, entry door, kitchen, family hall, bedroom, master bedroom, toilets and bathroom, balcony and much more of house design.
Uploaded by:

