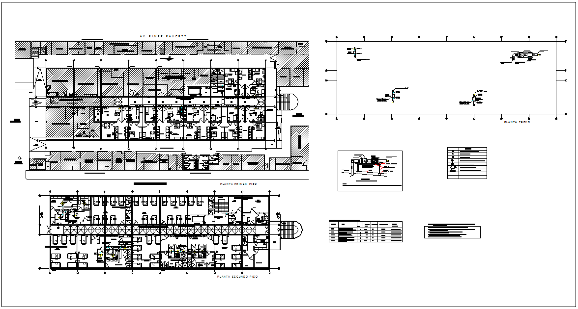
Air condition system plan view with its legend for hospital dwg file
Description
Air condition system plan view with its legend for hospital dwg file with plan view with main entrance
and operation room,washing area,medical general consultant,cardiologist,g astrologist,hall view and
neurologist consultant room and washing area view and Ac system mounting view with its legend
and necessary detail view.
Uploaded by:

