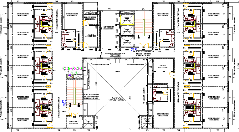
Multi-Flooring Hotel Architecture Layout and Structure Details dwg file
Description
Multi-Flooring Hotel Architecture Layout and Structure Details dwg file.
Multi-Flooring Hotel Architecture Layout and Structure Details that includes reception area, car parking area, lobby, garden, restaurant, kitchen, dining area, bedrooms, laundry area, gym, staff room, office and much more of hotel design.
Uploaded by:

