Waste Water Treatment Plant Architecture Layout and Structure Details dwg file
Description
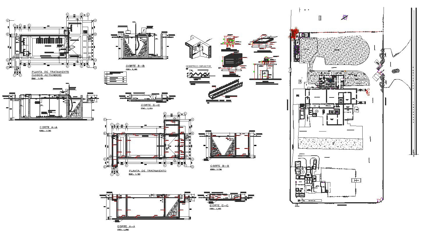
Waste Water Treatment Plant Architecture Layout and Structure Details dwg file .
Waste Water Treatment Plant Architecture Layout and Structure Details that includes outdoor garden, car parking area, plant, admin office, security check counter, toilets, indoor office structure and much more of water plant.
Uploaded by:

