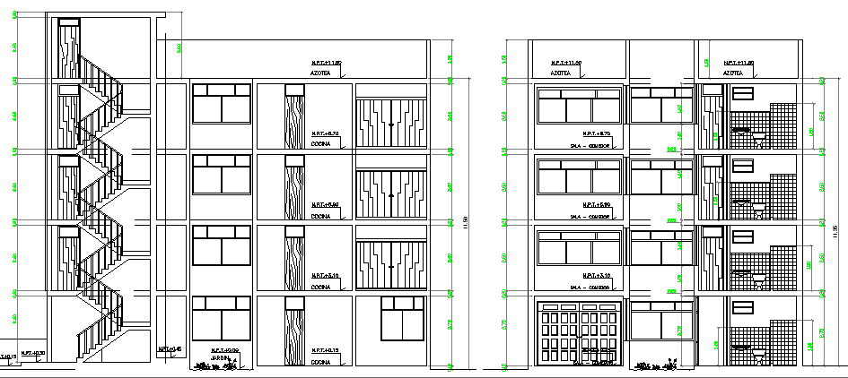
Residential Flats Architecture Layout and Elevation dwg file
Description
Residential Flats Architecture Layout and Elevation dwg file.
Residential Flats Architecture Layout and Elevation that includes front and back elevations, basement with parking, tree view and staircases, doors and windows, floor details, wall design, terrace and roof and much more of residential flats.
Uploaded by:

