Pediatric Hospital Three Story Design and Elevation dwg file
Description
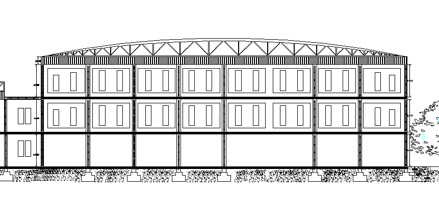
Pediatric Hospital Three Story Design and Elevation dwg file.
Pediatric Hospital Three Story Design and Elevation that includes a detailed view of main elevation with doors and window view, staircase view, roof and terrace view, balcony view, tree view and much more of hospital design.
Uploaded by:

