Multi-Specialty Hospital Elevation and Section Plan dwg file
Description
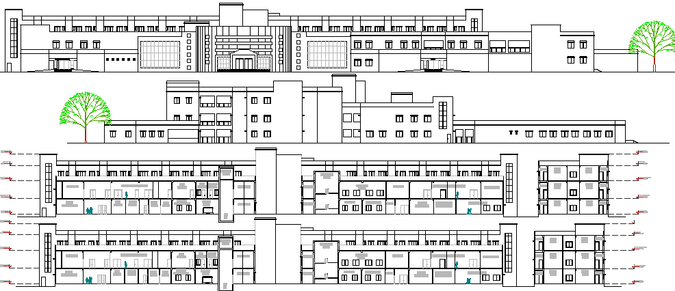
Multi-Specialty Hospital Elevation and Section Plan dwg file.
Multi-Specialty Hospital Elevation and Section Plan that includes west side elevation, north side elevation, front section, back section, doors and window elevation, staircase view, balcony, roof and terrace view, tomb view, tree view and much more of hospital elevation and section plan.
Uploaded by:

