Interior Design House 2D CAD Drawing with Wall Elevation Details
Description
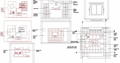
This interior design house CAD drawing provides complete wall elevation detailing for residential spaces. The drawing includes layout arrangements for living areas, bedrooms, the kitchen, and service spaces, along with interior finish material indications. Wall elevation views show furniture placement, shelf location, decorative panels, curtains, and window setting and lighting arrangement. Each elevation contains measurement references, height levels, joinery positions, and clear labeling, which supports accurate execution on site. The drawing is prepared for professional use and is ready for modification in most CAD editing platforms.
This CAD file is useful for architects, interior designers, civil engineers, contractors, builders, and students preparing interior layout presentations and working documents. It helps reduce drawing time, improve accuracy, and maintain consistency across project documentation. The drawing can be integrated with floor plans, electrical lay, and furniture arrangements for complete design development. Users can customize the drawing to match the material selection, color theme, and project style. Download this interior design CAD drawing to support residential interior planning, detailing, and visual presentation work with clarity and precision.
File Type:
DWG
File Size:
723 KB
Category::
Interior Design
Sub Category::
House Interiors Projects
type:
Gold

Uploaded by:
Jafania
Waxy

