Multi-Family Residential Building Project dwg file
Description
Multi-Family Residential Building Project dwg file .
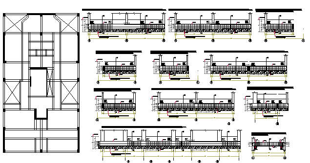
Multi-Family Residential Building Project that includes wall construction, column and beam construction, roof construction, cuts, staircase construction, measurements, material details and much more of residential building project.
Uploaded by:

