Italian Game Play Center Architecture Project dwg file
Description
Italian Game Play Center Architecture Project dwg file.
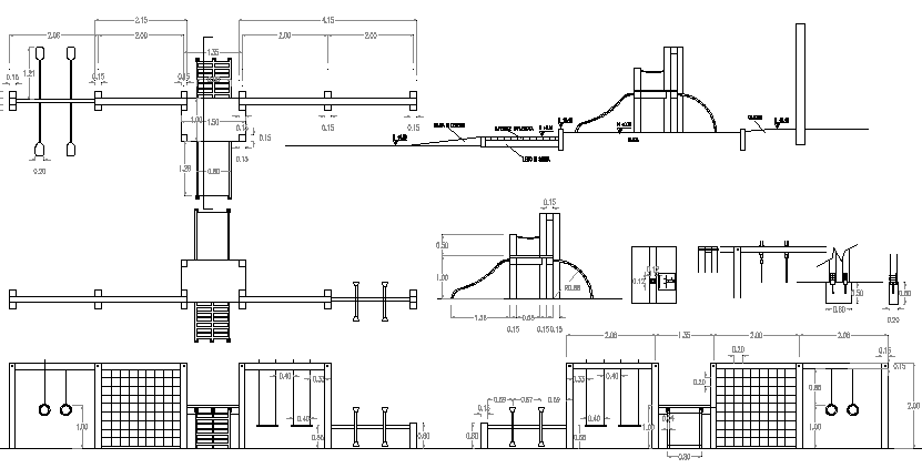
Italian Game Play Center Architecture Project that includes front elevation, back elevation, staircase elevation, footing details, construction details, column view and much more of geme center project.
Uploaded by:

