Clinic module architecture project dwg file
Description
Clinic module architecture project dwg file.
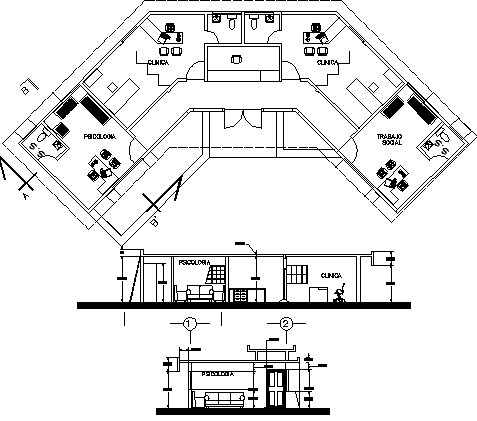
Clinic module architecture project that includes section details, doors and window elevation, waiting area, structure details clinic, consultant room, doctors offices, toilets and much more of clinic module.
Uploaded by:

