Digital trauma x-ray room architecture layout dwg file
Description
Digital trauma x-ray room architecture layout dwg file.
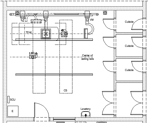
Digital trauma x-ray room architecture layout that includes center of ceiling room, cubicle, lavatory, ceiling suspension, moving trolley, digital movable stand and much more of x-ray room.
Uploaded by:

