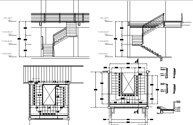
Staircase constructive details of building dwg file
Description
Staircase constructive details of building dwg file.
Staircase constructive details of building that includes wall construction, column and beam construction details, balcony view, staircase construction with steps details, roof view and much more of staircase details.
Uploaded by:

