Single family housing architecture layout dwg file
Description
Single family housing architecture layout dwg file.
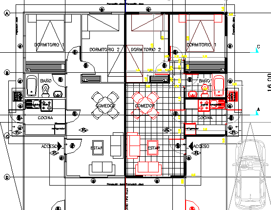
Single family housing architecture layout that includes a detailed view of main entry door, family hall, living area, kitchen, dining area, wash area, balcony view, bedrooms, terrace, toilets and bathroom and much more of single family housing details.
Uploaded by:

