Floor plan details of single family house project dwg file
Description
Floor plan details of single family house project dwg file
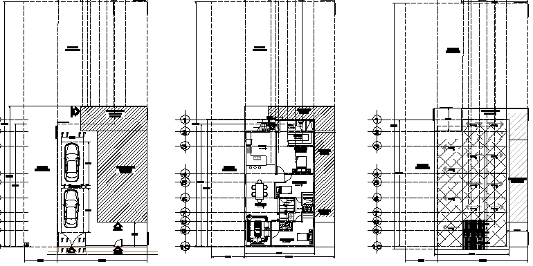
Floor plan details of single family house project that includes a detailed view of ground floor with car parking area and garden, first floor with main entry door, family hall, living room, kitchen, dining area, bedroom, balcony, passage, laundry area and top floor with terrace view and much more of house floor plan.
Uploaded by:

