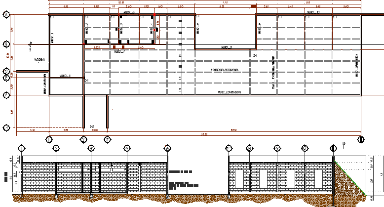
Community area building architecture project dwg file
Description
Community area building architecture project dwg file.
Community area building architecture project that includes detail con-tension, foundation plan re-creation building, enclosure, seated with cement sand morter and much more of community area building.
Uploaded by:

