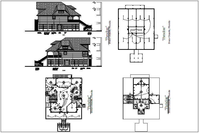
Bungalows floor plan with electrical view ,left and right view dwg file
Description
Bungalows floor plan with electrical view ,left and right view dwg file in plan view with
distribution of area and wall view and view of electrical with cable line view and fan
and light point view with left and right view.
File Type:
DWG
File Size:
468 KB
Category::
Electrical
Sub Category::
Architecture Electrical Plans
type:
Gold
Uploaded by:

