LOGIN
HOME
CATEGORIES
UPLOAD FILE
PRICING
HOUSE PLAN
ABOUT US
CONTACT US
House plan dwg file
Home
Categories
Architecture
House Plan
House plan dwg file
Uploaded by:
Chirag
View Profile
View Profile
Description
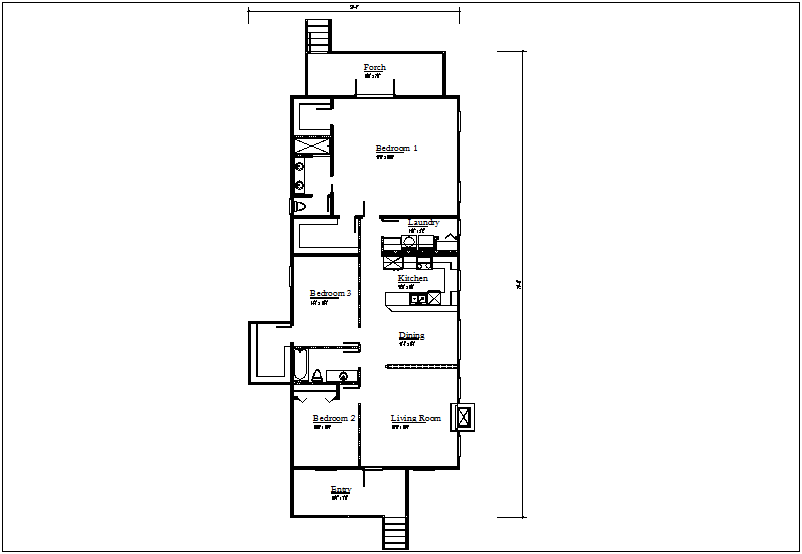
House plan dwg file in plan view with bedroom,kitchen,dining area and living room and entry way view with laundry and washing area view with distribution of area and wall view.
File Type:
DWG
File Size:
583 KB
Category::
Architecture
Sub Category::
House Plan
type:
Gold
Uploaded by:
Chirag
View Profile
Download
Add to libary
find Latest
Related
Files