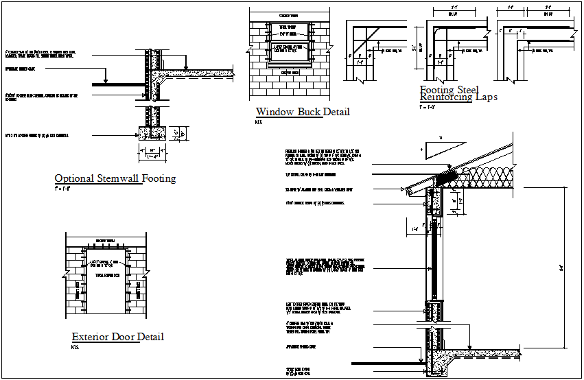
Structural detail view of footing with door and window detail dwg file
Description
Structural detail view of footing with door and window detail dwg file in detail view with
footing detail view with slab and wall view with concrete and view of door and window detail view with necessary dimension.
Uploaded by:

