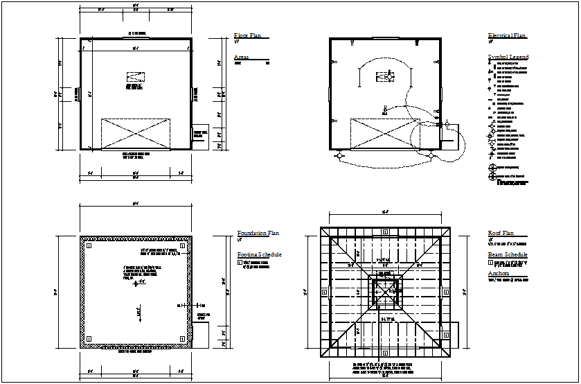
Electrical view of floor plan view with electrical legend dwg file
Description
Electrical view of floor plan view with electrical legend dwg file in plan view with wall view with distribution view and electrical plan view with electric line and point view of
light,fan and other electrical point view with electrical legend.
File Type:
DWG
File Size:
148 KB
Category::
Electrical
Sub Category::
Architecture Electrical Plans
type:
Gold
Uploaded by:

