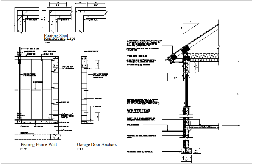
Footing and bearing frame view with structural detail dwg file
Description
Footing and bearing frame view with structural detail dwg file in detail view with footing
steel lap view with sectional view and view of bearing frame view with concrete view
and necessary detail and dimension view.
Uploaded by:

