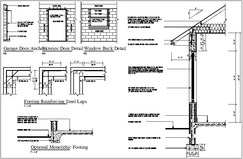
Garage door and window buck detail view with footing view dwg file
Description
Garage door and window buck detail view with footing view dwg file in detail view with
door and window view with wall and concrete view and view of footing rein forcing
steel lap view.
Uploaded by:

