Steel structure elevation and section view detail dwg file
Description
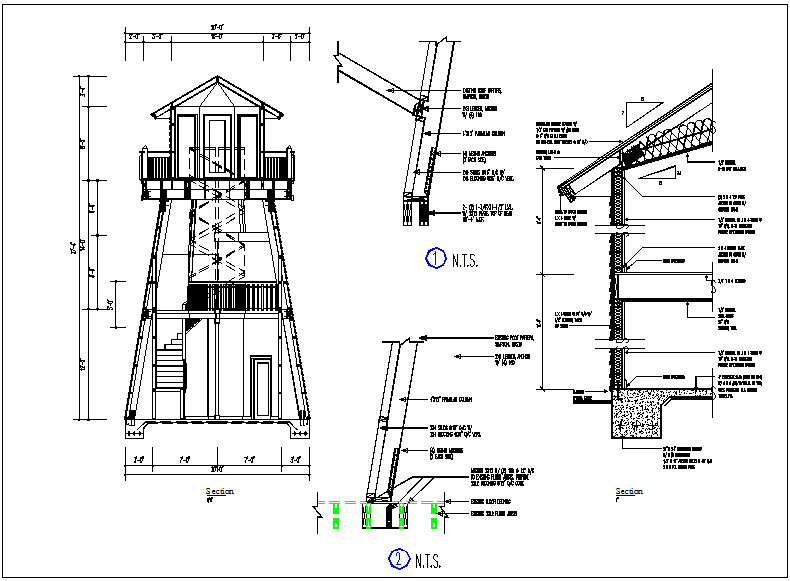
Steel structure elevation and section view detail dwg file, Steel structure elevation and section view detail with dimensions detail, section view detail of structure members, roof and column connections, roof structure detail and material specification detail, anchoring detail etc
Uploaded by:

