Section and side section view of house detail view dwg file
Description
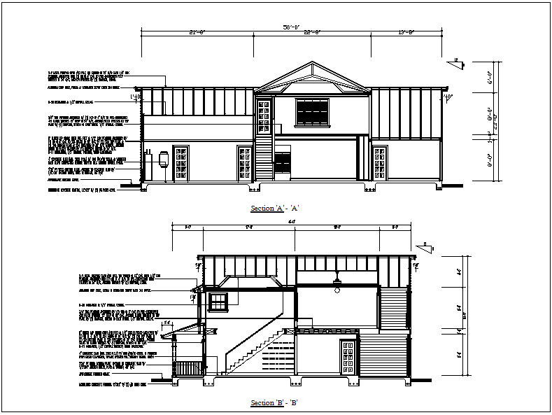
Section and side section view of house detail view dwg file, Section and side section view of house detail view with specification detail, concrete floor and column bars detail view and information, truss detail, plywood flooring detail, ceiling insulation detail
Uploaded by:

