Interior furniture view of resident detail dwg file
Description
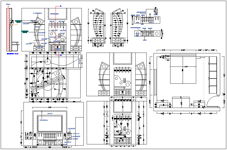
Interior furniture view of resident detail dwg file, Entrance door of resident elevation and side elevation view, furniture design of entrance door , interior furniture of wardrobe of bed room
Uploaded by:

