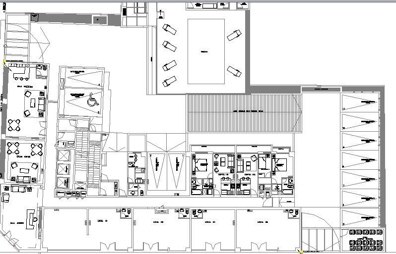
Multi-flooring housing apartment structure details dwg file
Description
Multi-flooring housing apartment structure details dwg file.
Multi-flooring housing apartment structure details that includes a detailed view of car parking area, garden area, main entry door, family hall, dining area, living room, kitchen, balcony view, indoor staircase, laundry area, passage, bedrooms, toilets and bathrooms and much more of housing apartment flats structure details.
Uploaded by:

