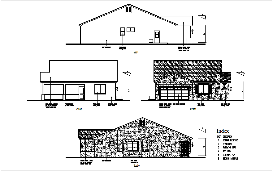
Structural view of house left,right and front view dwg file
Description
Structural view of house left,right and front view dwg file in left view with door,window
and wall view and right and front view with wall view and necessary dimension view
with necessary detail.
Uploaded by:

