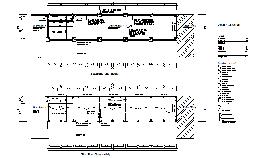
Foundation plan of ware house with floor plan dwg file
Description
Foundation plan of ware house with floor plan dwg file in foundation plan view with
concrete ram,pad and footing view and recess view and wall view with necessary dimension view and floor plan view.
Uploaded by:

