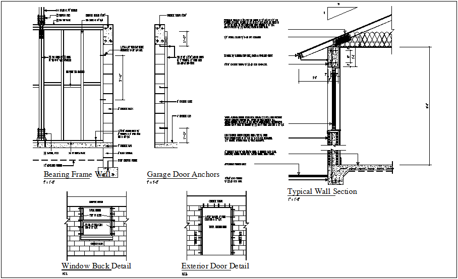
Construction view of bearing frame and garage door anchor detail dwg file
Description
Construction view of bearing frame and garage door anchor detail dwg file in bearing
frame view with wall view and bottom plate and footing view,truss,tie beam and slab
view with garage anchor door view.
Uploaded by:
