Wall section with footing and electrical panel view dwg file
Description
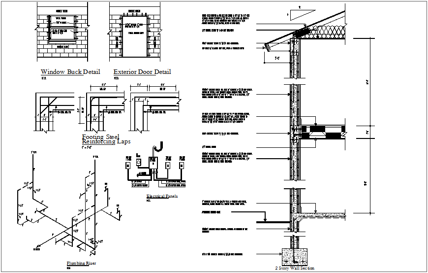
Wall section with footing and electrical panel view dwg file in elevation view with footing steel reinforcing laps view and electrical panel view with phase line and copper cable ground view and wall section view.
Uploaded by:
