Architecture project of one level single family house dwg file
Description
Architecture project of one level single family house dwg file.
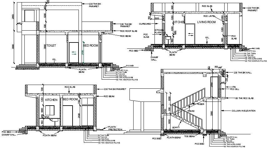
Architecture project of one level single family house that includes front and back elevations with measurements, section details with cuts, doors and window view, staircase view, footing view, wall details, column and beam details and much more of house project.
Uploaded by:

