Modern School and Office Building CAD Layout with Full Detailing
Description
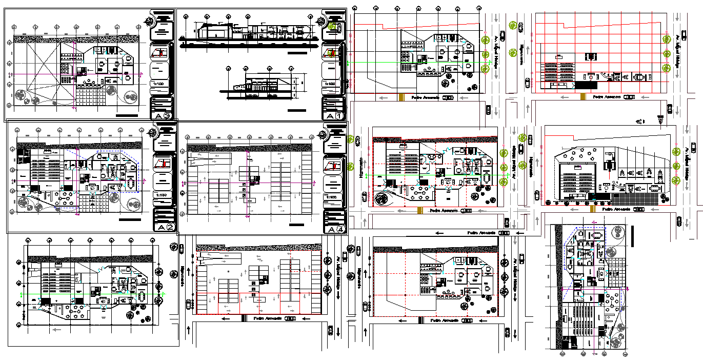
This Modern School and Office Building Design CAD Drawing presents a detailed architectural layout combining educational and corporate spaces in one plan. The AutoCAD DWG file includes floor plans with room divisions, corridor alignments, and staircase positioning for efficient movement. The design integrates classrooms, staff offices, meeting areas, and conference halls, ensuring a functional balance between academic and administrative spaces. The elevations and sectional drawings highlight the façade design, column placement, and wall dimensions with precise measurements for execution accuracy.
The School and Office Layout Plan is perfect for architects, engineers, and construction professionals working on multipurpose building projects. It follows modern architectural standards, emphasizing natural light, ventilation, and ergonomic planning. This CAD layout can be easily edited and rendered using AutoCAD, Revit, 3ds Max, or SketchUp, making it ideal for visualization and presentation. The file supports both 2D drafting and 3D modeling needs. Subscribe to Cadbull today to access this and thousands of other educational and commercial building CAD designs, crafted for accuracy and efficiency in every architectural project.

Uploaded by:
Harriet
Burrows
