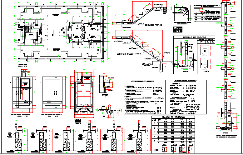
Staircase construction of residential building with column and beam details dwg file
Description
Staircase construction of residential building with column and beam details dwg file
Staircase construction of residential building with column and beam details that includes a detailed view of floor vise staircase construction with steps details, material used details, supportive pillar construction, column construction, beam construction details, floor construction and much more of staircase and construction details.
Uploaded by:

