Three flooring multi-family bungalow architecture project dwg file
Description
Three flooring multi-family bungalow architecture project dwg file
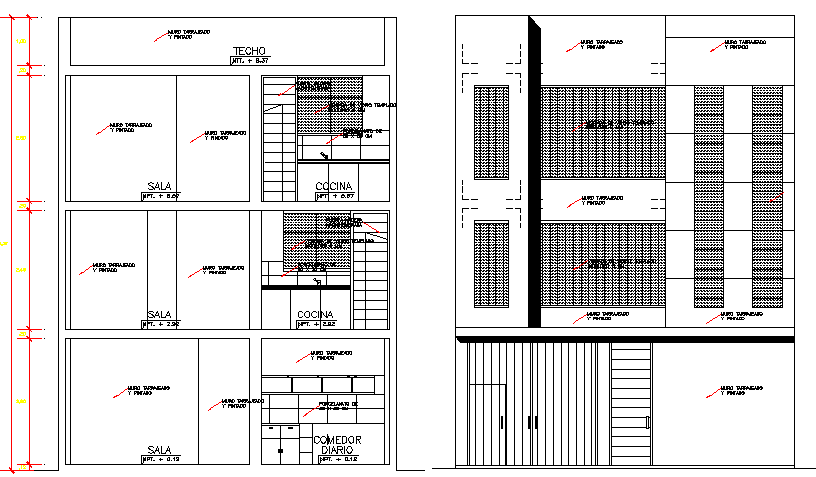
Three flooring multi-family bungalow architecture project that includes a detailed view of front detailed elevation, sectional view, doors and windows view, staircase view, roof or terrace view, balcony and much more of bungalow design.
Uploaded by:

