Existing structure roof plan view detail dwg file

Existing structure roof plan view detail dwg file
Profile

Uploaded by:

Parth

Description
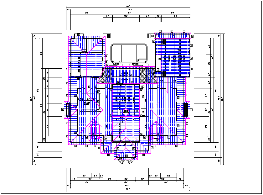
Existing structure roof plan view detail dwg file, Existing structure roof plan view detail with specification detail, dimension detail of roof plan layout detailing, roof wooden beam size and dimension detail, anchoring detail
Profile

Uploaded by:

Parth

find Latest

Related Files

WhatsApp Chat