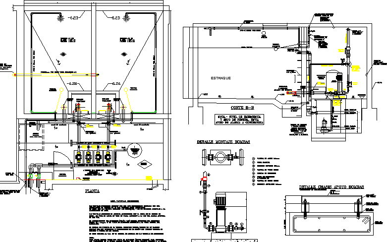
Water reservoir tank architecture project dwg file
Description
Water reservoir tank architecture project dwg file.
Water reservoir tank architecture project that includes a detailed view of water tank construction details with floor, column, pillars, beam, water mortar and machinates, tank construction, electric installation and much more of water reservoir tank details.
Uploaded by:

