House electric plan layout and design plan layout view detail dwg file
Description
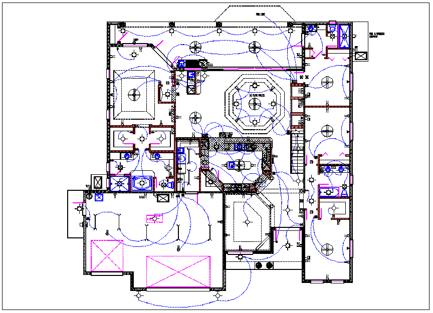
House electric plan layout and design plan layout view detail dwg file, House electric plan layout and design plan layout view detail with specification detail, dimensions detail, specification detail of ceiling, wall, plates, connections etc
Uploaded by:

