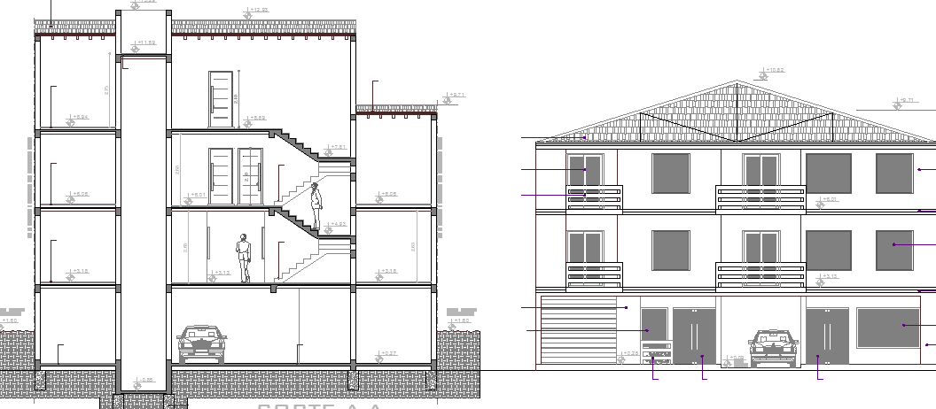
Multi-flooring residential building elevation and section details dwg file
Description
Multi-flooring residential building elevation and section details dwg file.
Multi-flooring residential building elevation and section details that includes a detailed view of front elevation, front section, floor view, basement car parking view, doors and windows view, staircase view, balcony view and much more of building elevation details.
Uploaded by:
