Medical college front and back sectional details dwg file
Description
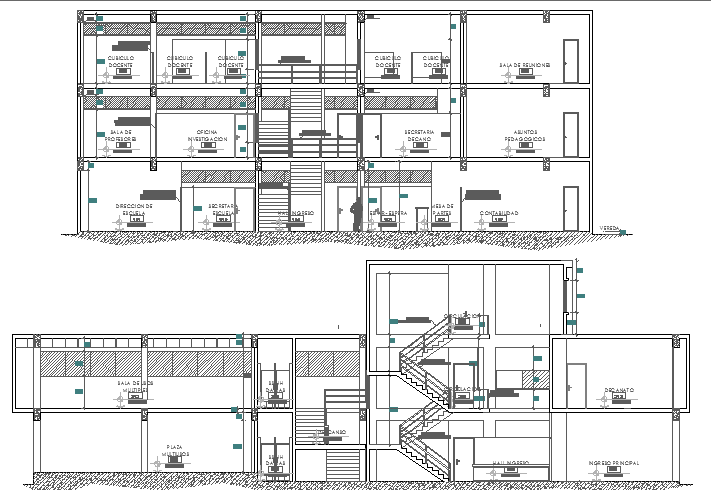
Medical college front and back sectional details dwg file.
Medical college front and back sectional details that includes a detailed view of front section, back section, floor view, doors and windows view, indoor and outdoor staircase view, roof or terrace view, reception area, admin office and much more of building section.
Uploaded by:

