House roof plan view, foundations of column plan layout dwg file
Description
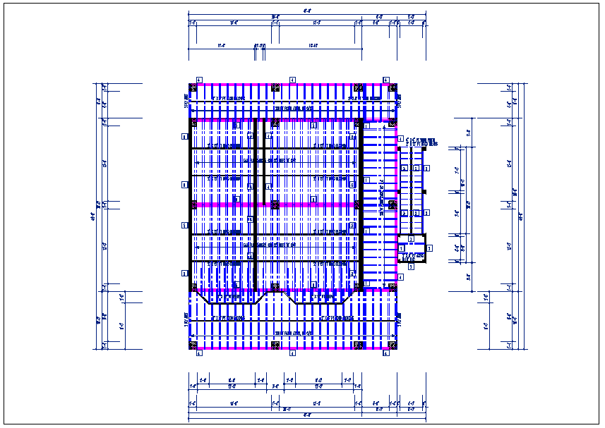
House roof plan view with foundations of column plan layout detail dwg file, existing flat roof plan view detail with specification detail, dimension detail of roof plan layout detailing, roof beam size and dimension detail, anchoring detail
Uploaded by:

