Slab detail and beam column arrangement view and section view detail dwg file
Description
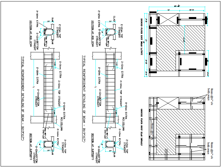
Slab detail and beam column arrangement view and section view detail dwg file, Slab detail and beam column arrangement view and section view detail with dimensions detail, specification detail, reinforcement detail, steel bars dimensions detail , beam arrangement layout detail etc
Uploaded by:

