Office building floor plan detail and section view detail dwg file
Description
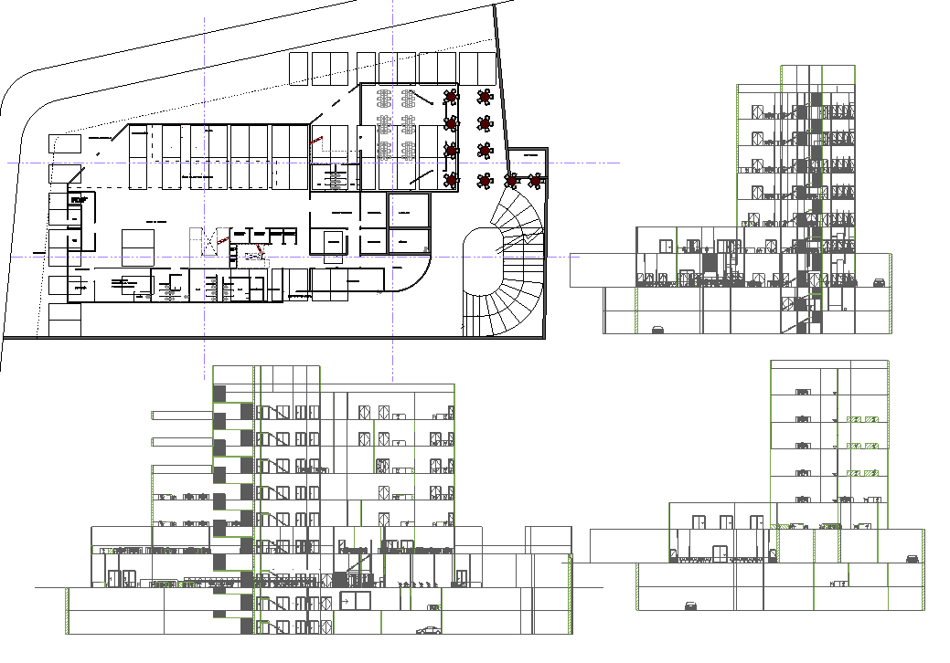
Office building floor plan detail and section view detail dwg file, Office building floor plan detail and design plan layout detail view with specification detail, floor plan, section view detail, elevation view detail, center line view etc Office building floor plan detail and design plan layout detail view with specification detail, floor plan, section view detail, elevation view detail, center line view etc
Uploaded by:

