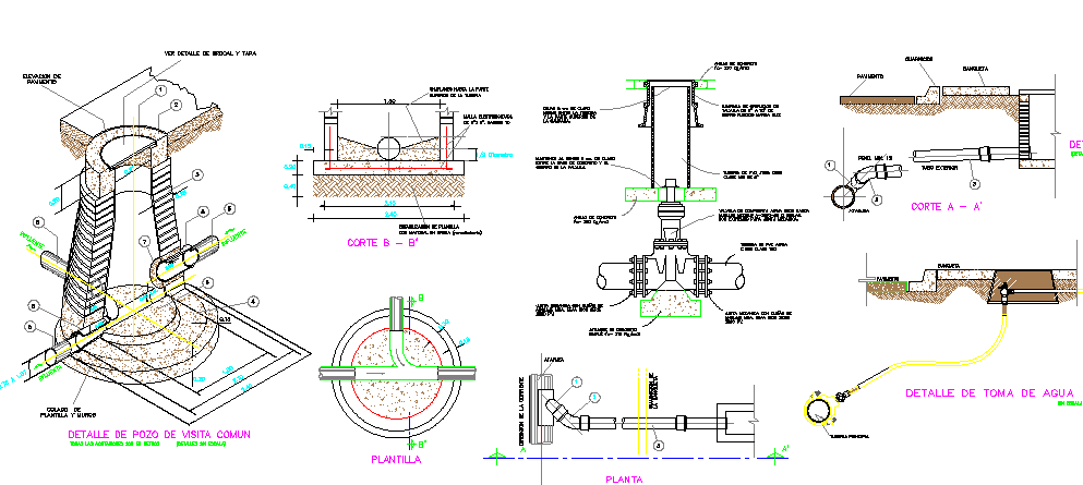
Drinkable water tank constructive details dwg file
Description
Drinkable water tank constructive details dwg file.
Drinkable water tank constructive details that includes a detailed view of detail of common visiting wall, typical connection detail, template, detail of water take, direction of the current banquet sticking, concrete single factor, mechanical gasket with mcs iron series, weld valve marl model, mechanical gasket and much more of water tank details.
Uploaded by:

