Automatic sliding door installation details dwg file
Description
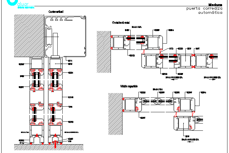
Automatic sliding door installation details dwg file.
Automatic sliding door installation details that includes a detailed view of sliding sheet, fixed leaf, Distributed glass, Vertical cut, horizontal cut and much more of door details.
Uploaded by:

